Metpar Catalog
Metpar Catalog - A parent seeks an activity for a rainy afternoon, a student needs a tool to organize their study schedule, or a family wants to plan their weekly meals more effectively. This hamburger: three dollars, plus the degradation of two square meters of grazing land, plus the emission of one hundred kilograms of methane. 41 Different business structures call for different types of org charts, from a traditional hierarchical chart for top-down companies to a divisional chart for businesses organized by product lines, or a flat chart for smaller startups, showcasing the adaptability of this essential business chart. I had to choose a primary typeface for headlines and a secondary typeface for body copy. This includes the cost of shipping containers, of fuel for the cargo ships and delivery trucks, of the labor of dockworkers and drivers, of the vast, automated warehouses that store the item until it is summoned by a click. 102 In the context of our hyper-connected world, the most significant strategic advantage of a printable chart is no longer just its ability to organize information, but its power to create a sanctuary for focus. This constant state of flux requires a different mindset from the designer—one that is adaptable, data-informed, and comfortable with perpetual beta. I've learned that this is a field that sits at the perfect intersection of art and science, of logic and emotion, of precision and storytelling. Insert a thin plastic prying tool into this gap and carefully slide it along the seam between the screen assembly and the rear casing. The adjustable light-support arm allows you to raise the LED light hood as your plants grow taller, ensuring that they always receive the proper amount of light without the risk of being scorched. They often include pre-set formulas and functions to streamline calculations and data organization. 36 This detailed record-keeping is not just for posterity; it is the key to progressive overload and continuous improvement, as the chart makes it easy to see progress over time and plan future challenges. The psychologist Barry Schwartz famously termed this the "paradox of choice. In the final analysis, the free printable represents a remarkable and multifaceted cultural artifact of our time. 73 To save on ink, especially for draft versions of your chart, you can often select a "draft quality" or "print in black and white" option. The second huge counter-intuitive truth I had to learn was the incredible power of constraints. The playlist, particularly the user-generated playlist, is a form of mini-catalog, a curated collection designed to evoke a specific mood or theme. For performance issues like rough idling or poor acceleration, a common culprit is a dirty air filter or old spark plugs. Water bottle labels can also be printed to match the party theme. But it was the Swiss Style of the mid-20th century that truly elevated the grid to a philosophical principle. This idea, born from empathy, is infinitely more valuable than one born from a designer's ego. To release it, press down on the switch while your foot is on the brake pedal. One can find printable worksheets for every conceivable subject and age level, from basic alphabet tracing for preschoolers to complex periodic tables for high school chemistry students. Legal and Ethical Considerations Fear of judgment, whether from others or oneself, can be mitigated by creating a safe and private journaling space. Our problem wasn't a lack of creativity; it was a lack of coherence. It allows you to see both the whole and the parts at the same time. A click leads to a blog post or a dedicated landing page where the creator often shares the story behind their creation or offers tips on how to best use it. Software like PowerPoint or Google Slides offers a vast array of templates, each providing a cohesive visual theme with pre-designed layouts for title slides, bullet point slides, and image slides. It can give you a pre-built chart, but it cannot analyze the data and find the story within it. These entries can be specific, such as a kind gesture from a friend, or general, such as the beauty of nature. The interface of a streaming service like Netflix is a sophisticated online catalog. The future of knitting is bright, with endless possibilities for creativity and innovation. It seemed cold, objective, and rigid, a world of rules and precision that stood in stark opposition to the fluid, intuitive, and emotional world of design I was so eager to join. " Playfair’s inventions were a product of their time—a time of burgeoning capitalism, of nation-states competing on a global stage, and of an Enlightenment belief in reason and the power of data to inform public life. There is the immense and often invisible cost of logistics, the intricate dance of the global supply chain that brings the product from the factory to a warehouse and finally to your door. In contrast, a well-designed tool feels like an extension of one’s own body. We know that beneath the price lies a story of materials and energy, of human labor and ingenuity. You have to believe that the hard work you put in at the beginning will pay off, even if you can't see the immediate results. 59 These tools typically provide a wide range of pre-designed templates for everything from pie charts and bar graphs to organizational charts and project timelines. A pictogram where a taller icon is also made wider is another; our brains perceive the change in area, not just height, thus exaggerating the difference. It’s a way of visually mapping the contents of your brain related to a topic, and often, seeing two disparate words on opposite sides of the map can spark an unexpected connection. From a simple checklist to complex 3D models, the printable defines our time. 1This is where the printable chart reveals its unique strength. The wages of the farmer, the logger, the factory worker, the person who packs the final product into a box. They are discovered by watching people, by listening to them, and by empathizing with their experience. Set up still lifes, draw from nature, or sketch people in various settings. If the issue is related to dimensional inaccuracy in finished parts, the first step is to verify the machine's mechanical alignment and backlash parameters. It is a minimalist aesthetic, a beauty of reason and precision. Amigurumi, the Japanese art of crocheting small, stuffed animals and creatures, has become incredibly popular in recent years, showcasing the playful and whimsical side of crochet. It transforms a complex timeline into a clear, actionable plan. Every effective template is a gift of structure. It does not plead or persuade; it declares. Cultural Significance and Preservation Details: Focus on capturing the details that make your subject unique. The most fertile ground for new concepts is often found at the intersection of different disciplines. And this idea finds its ultimate expression in the concept of the Design System. A more expensive coat was a warmer coat. Printable maps and diagrams are useful for geography and science. Many seemingly complex problems have surprisingly simple solutions, and this "first aid" approach can save you a tremendous amount of time, money, and frustration. At the same time, visually inspect your tires for any embedded objects, cuts, or unusual wear patterns. Now, when I get a brief, I don't lament the constraints. It created this beautiful, flowing river of data, allowing you to trace the complex journey of energy through the system in a single, elegant graphic. Through the act of drawing, we learn to trust our instincts, embrace our mistakes, and celebrate our successes, all the while pushing the boundaries of our creativity and imagination. " To fulfill this request, the system must access and synthesize all the structured data of the catalog—brand, color, style, price, user ratings—and present a handful of curated options in a natural, conversational way. A professional might use a digital tool for team-wide project tracking but rely on a printable Gantt chart for their personal daily focus. Knitting is more than just a method of making fabric; it is a meditative craft, a form of creative expression, and a link to our cultural heritage. A digital manual is instantly searchable, can be accessed on multiple devices, is never lost, and allows for high-resolution diagrams and hyperlinked cross-references that make navigation effortless. Watermarking and using metadata can help safeguard against unauthorized use. When using printable images, it’s important to consider copyright laws. The exterior side mirrors should be adjusted so that you can just see the side of your vehicle in the inner portion of the mirror, which helps to minimize blind spots. The logo at the top is pixelated, compressed to within an inch of its life to save on bandwidth. Furthermore, the concept of the "Endowed Progress Effect" shows that people are more motivated to work towards a goal if they feel they have already made some progress. An honest cost catalog would have to account for these subtle but significant losses, the cost to the richness and diversity of human culture. For larger appliances, this sticker is often located on the back or side of the unit, or inside the door jamb. The cheapest option in terms of dollars is often the most expensive in terms of planetary health. Yet, beneath this utilitarian definition lies a deep and evolving concept that encapsulates centuries of human history, technology, and our innate desire to give tangible form to intangible ideas. Each item is photographed in a slightly surreal, perfectly lit diorama, a miniature world where the toys are always new, the batteries are never dead, and the fun is infinite. It might be their way of saying "This doesn't feel like it represents the energy of our brand," which is a much more useful piece of strategic feedback. We also explored the significant advantages of using the digital manual, highlighting powerful features like text search and the clickable table of contents that make finding information easier and faster than ever before. A vast majority of people, estimated to be around 65 percent, are visual learners who process and understand concepts more effectively when they are presented in a visual format. Another fundamental economic concept that a true cost catalog would have to grapple with is that of opportunity cost.Master Catalog Metpar PDF
Metpar ® 1 Leading Toilet Partition Manufacturer
Metpar ® 1 Leading Toilet Partition Manufacturer
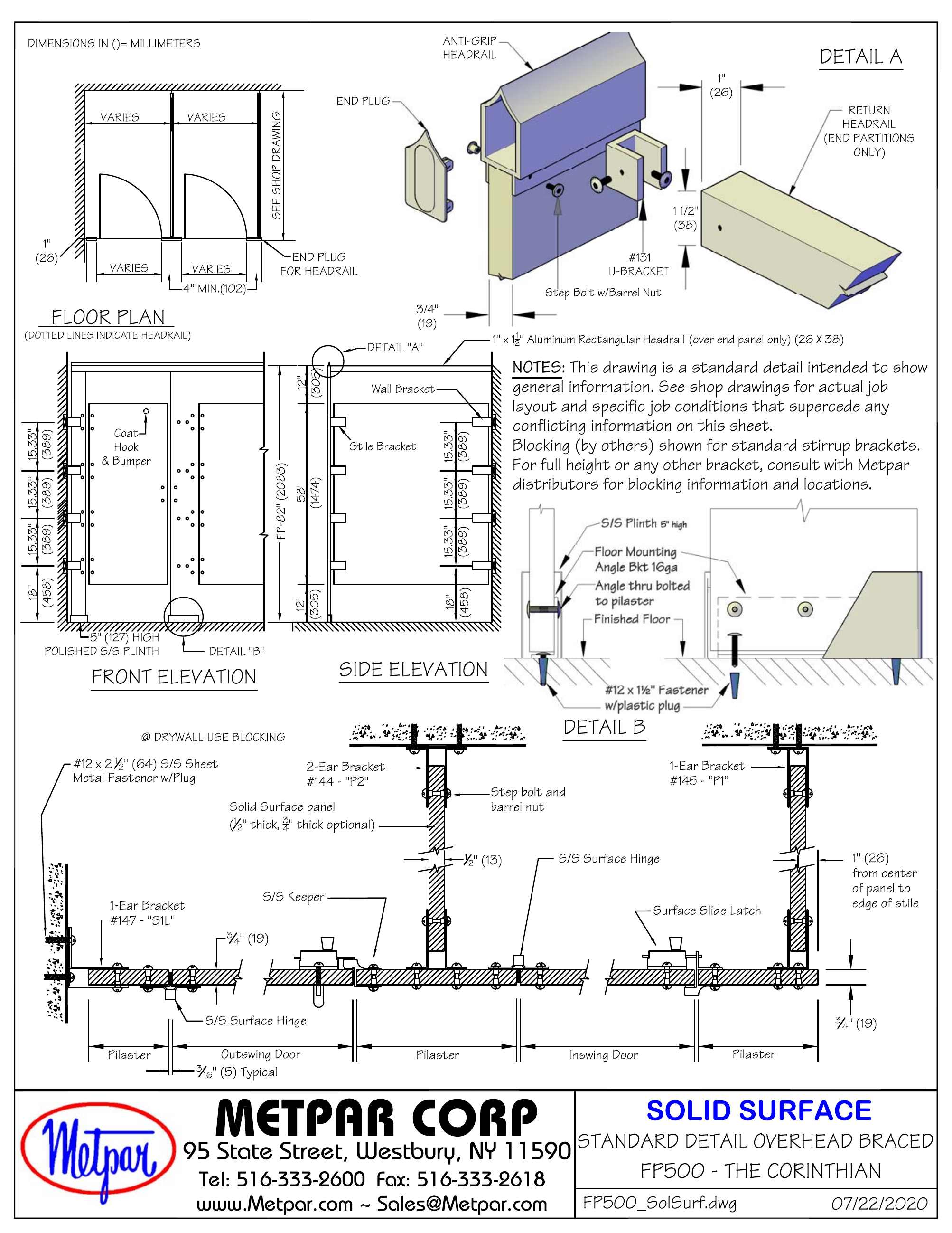
Metpar Corp., Catalogs, The Corinthian Type FP 500 Overhead Braced ARCAT
Metpar Corp., Catalogs, Plastic Laminate Color Chart ARCAT
Standard Metpar
Metpar Corp., Catalogs, Toilet Compartments ARCAT
Metpar ® 1 Leading Toilet Partition Manufacturer
Metpar Corp Westbury NY
Metpar ® 1 Leading Toilet Partition Manufacturer
Powder Coated Toilet Partitions Mavi New York
Metpar Corp., Catalogs, DurATex PowderCoated Textured Steel ARCAT
Metpar ® 1 Leading Toilet Partition Manufacturer
Downloads
Metpar Toilet Partitions Features and Installation Partition Stalls
Metpar Corp., Catalogs, Toilet Compartments ARCAT
Metpar ® 1 Leading Toilet Partition Manufacturer
Metpar Corp on LinkedIn New look for our Master Catalog! Check it out
Metpar ® 1 Leading Toilet Partition Manufacturer
Metpar ® 1 Leading Toilet Partition Manufacturer
DurATex Toilet Partitions Metpar
Metpar ® 1 Leading Toilet Partition Manufacturer
Metpar ® 1 Leading Toilet Partition Manufacturer
Metpar Introduces "Solid Surface" Toilet Partitions Metpar
Metpar Corp., Catalogs, Stainless Steel Finishes ARCAT
Metpar ® 1 Leading Toilet Partition Manufacturer
Metpar Corp., Catalogs, The Corinthian Type FP 500 Overhead Braced ARCAT
Metpar ® 1 Leading Toilet Partition Manufacturer
Solitude Euro Style Toilet Partitions Metpar
Metpar Toilet Partitions Features and Installation Partition Stalls
Metpar ® 1 Leading Toilet Partition Manufacturer
Quick Ship Metpar 1 Leading Toilet Partition Manufacturer
Metpar ® 1 Leading Toilet Partition Manufacturer
Metpar Toilet Partitions Features and Installation Partition Stalls
Metpar Corp., Catalogs, Toilet Compartments ARCAT
Related Post:































