Landoll Trailer Parts Catalog
Landoll Trailer Parts Catalog - 27 This type of chart can be adapted for various needs, including rotating chore chart templates for roommates or a monthly chore chart for long-term tasks. The printable template is the key that unlocks this fluid and effective cycle. It exists as a simple yet profound gesture, a digital file offered at no monetary cost, designed with the sole purpose of being brought to life on a physical sheet of paper. To start, fill the planter basin with water up to the indicated maximum fill line. You have to anticipate all the different ways the template might be used, all the different types of content it might need to accommodate, and build a system that is both robust enough to ensure consistency and flexible enough to allow for creative expression. While digital planners offer undeniable benefits like accessibility from any device, automated reminders, and easy sharing capabilities, they also come with significant drawbacks. 89 Designers must actively avoid deceptive practices like manipulating the Y-axis scale by not starting it at zero, which can exaggerate differences, or using 3D effects that distort perspective and make values difficult to compare accurately. By drawing a simple line for each item between two parallel axes, it provides a crystal-clear picture of which items have risen, which have fallen, and which have crossed over. Personal budget templates assist in managing finances and planning for the future. Adjust the seat forward or backward so that you can fully depress the pedals with a slight bend in your knees. Digital distribution of printable images reduces the need for physical materials, aligning with the broader goal of reducing waste. They can offer a free printable to attract subscribers. Whether you are changing your oil, replacing a serpentine belt, or swapping out a faulty alternator, the same core philosophy holds true. The legendary presentations of Hans Rosling, using his Gapminder software, are a masterclass in this. One of the primary mechanisms through which journaling exerts its positive effects is by providing a structured outlet for self-expression. If the system determines that a frontal collision is likely, it prompts you to take action using audible and visual alerts. Chinese porcelain, with its delicate blue-and-white patterns, and Japanese kimono fabrics, featuring seasonal motifs, are prime examples of how patterns were integrated into everyday life. Understanding how light interacts with objects helps you depict shadows, highlights, and textures accurately. There is often very little text—perhaps just the product name and the price. These initial adjustments are the bedrock of safe driving and should be performed every time you get behind the wheel. We can now create dashboards and tools that allow the user to become their own analyst. 49 This guiding purpose will inform all subsequent design choices, from the type of chart selected to the way data is presented. Can a chart be beautiful? And if so, what constitutes that beauty? For a purist like Edward Tufte, the beauty of a chart lies in its clarity, its efficiency, and its information density. It invites a different kind of interaction, one that is often more deliberate and focused than its digital counterparts. Whether it's a child scribbling with crayons or a seasoned artist sketching with charcoal, drawing serves as a medium through which we can communicate our ideas, beliefs, and experiences without the constraints of words or language. I learned about the critical difference between correlation and causation, and how a chart that shows two trends moving in perfect sync can imply a causal relationship that doesn't actually exist. The cost catalog would also need to account for the social costs closer to home. It’s a humble process that acknowledges you don’t have all the answers from the start. Living in an age of burgeoning trade, industry, and national debt, Playfair was frustrated by the inability of dense tables of economic data to convey meaning to a wider audience of policymakers and the public. For millennia, humans had used charts in the form of maps and astronomical diagrams to represent physical space, but the idea of applying the same spatial logic to abstract, quantitative data was a radical leap of imagination. The result is that the homepage of a site like Amazon is a unique universe for every visitor. Competitors could engage in "review bombing" to sabotage a rival's product. It champions principles of durability, repairability, and the use of renewable resources. The printable is a tool of empowerment, democratizing access to information, design, and even manufacturing. This separation of the visual layout from the content itself is one of the most powerful ideas in modern web design, and it is the core principle of the Content Management System (CMS). In conclusion, the simple adjective "printable" contains a universe of meaning. 68 Here, the chart is a tool for external reinforcement. I saw the visible structure—the boxes, the columns—but I was blind to the invisible intelligence that lay beneath. Typically, it consists of a set of three to five powerful keywords or phrases, such as "Innovation," "Integrity," "Customer-Centricity," "Teamwork," and "Accountability. The catalog's demand for our attention is a hidden tax on our mental peace. Creativity thrives under constraints. The more recent ancestor of the paper catalog, the library card catalog, was a revolutionary technology in its own right. Tunisian crochet, for instance, uses a longer hook to create a fabric that resembles both knitting and traditional crochet. A patient's weight, however, is often still measured and discussed in pounds in countries like the United States. 69 By following these simple rules, you can design a chart that is not only beautiful but also a powerful tool for clear communication. The principles they established for print layout in the 1950s are the direct ancestors of the responsive grid systems we use to design websites today. It is a device for focusing attention, for framing a narrative, and for turning raw information into actionable knowledge. The page is stark, minimalist, and ordered by an uncompromising underlying grid. This is a critical step for safety. Every one of these printable resources empowers the user, turning their printer into a small-scale production facility for personalized, useful, and beautiful printable goods. Next, reinstall the caliper mounting bracket, making sure to tighten its two large bolts to the manufacturer's specified torque value using your torque wrench. Tangible, non-cash rewards, like a sticker on a chart or a small prize, are often more effective than monetary ones because they are not mentally lumped in with salary or allowances and feel more personal and meaningful, making the printable chart a masterfully simple application of complex behavioral psychology. C. 47 Furthermore, the motivational principles of a chart can be directly applied to fitness goals through a progress or reward chart. The bulk of the design work is not in having the idea, but in developing it. The entire system becomes a cohesive and personal organizational hub. Your Aura Smart Planter is now assembled and ready for the next step: bringing it to life. The power-adjustable exterior side mirrors should be positioned to minimize your blind spots; a good practice is to set them so you can just barely see the side of your vehicle. Finally, it’s crucial to understand that a "design idea" in its initial form is rarely the final solution. These aren't meant to be beautiful drawings. The technical specifications of your Aeris Endeavour are provided to give you a detailed understanding of its engineering and capabilities. It is a catalog of the internal costs, the figures that appear on the corporate balance sheet. This guide is built on shared experience, trial and error, and a collective passion for keeping these incredible vehicles on the road without breaking the bank. Sustainable and eco-friendly yarns made from recycled materials, bamboo, and even banana fibers are gaining popularity, aligning with a growing awareness of environmental issues. Even with the most diligent care, unexpected situations can arise. 3Fascinating research into incentive theory reveals that the anticipation of a reward can be even more motivating than the reward itself. It's the architecture that supports the beautiful interior design. 72 Before printing, it is important to check the page setup options. It questions manipulative techniques, known as "dark patterns," that trick users into making decisions they might not otherwise make. What I've come to realize is that behind every great design manual or robust design system lies an immense amount of unseen labor. From a simple blank grid on a piece of paper to a sophisticated reward system for motivating children, the variety of the printable chart is vast, hinting at its incredible versatility. Cost-Effectiveness: Many templates are available for free or at a low cost, providing an affordable alternative to hiring professional designers or content creators. It can be placed in a frame, tucked into a wallet, or held in the hand, becoming a physical totem of a memory. My journey into understanding the template was, therefore, a journey into understanding the grid. We now have tools that can automatically analyze a dataset and suggest appropriate chart types, or even generate visualizations based on a natural language query like "show me the sales trend for our top three products in the last quarter. Keep a Sketchbook: Maintain a sketchbook to document your progress, experiment with ideas, and practice new techniques. An honest cost catalog would have to account for these subtle but significant losses, the cost to the richness and diversity of human culture. Below, a simple line chart plots the plummeting temperatures, linking the horrifying loss of life directly to the brutal cold. It created this beautiful, flowing river of data, allowing you to trace the complex journey of energy through the system in a single, elegant graphic. Research conducted by Dr.Landoll Trailer Parts & Service Manuals Eastern Wrecker Sales Inc
Landoll Trailer Parts & Service Manuals Eastern Wrecker Sales Inc
Landoll Trailer Parts & Service Manuals Eastern Wrecker Sales Inc
Landoll Parts Catalog Catalog Library
Landoll Trailer Parts & Service Manuals Eastern Wrecker Sales Inc
Landoll Trailer Parts & Service Manuals Eastern Wrecker Sales Inc
landoll model 600b parts manual Eastern Wrecker Sales Inc
Landoll Weatherproofer I 2410 Parts Manual F6210912
Landoll 600a Series SemiTrailer Flatbed Parts Catalog Book manual
Landoll Trailer Parts & Service Manuals Eastern Wrecker Sales Inc
Landoll Disc 7833 High Speed Landoll (HSL) Parts Manual F8950221
Landoll Trailer Parts & Service Manuals Eastern Wrecker Sales Inc
landoll model 825a835 trailer parts list Eastern Wrecker Sales Inc
Landoll LoadollII Rollback Carrier Brochure click on the link down
Parts Landoll
Landoll Trailer Parts & Service Manuals Eastern Wrecker Sales Inc
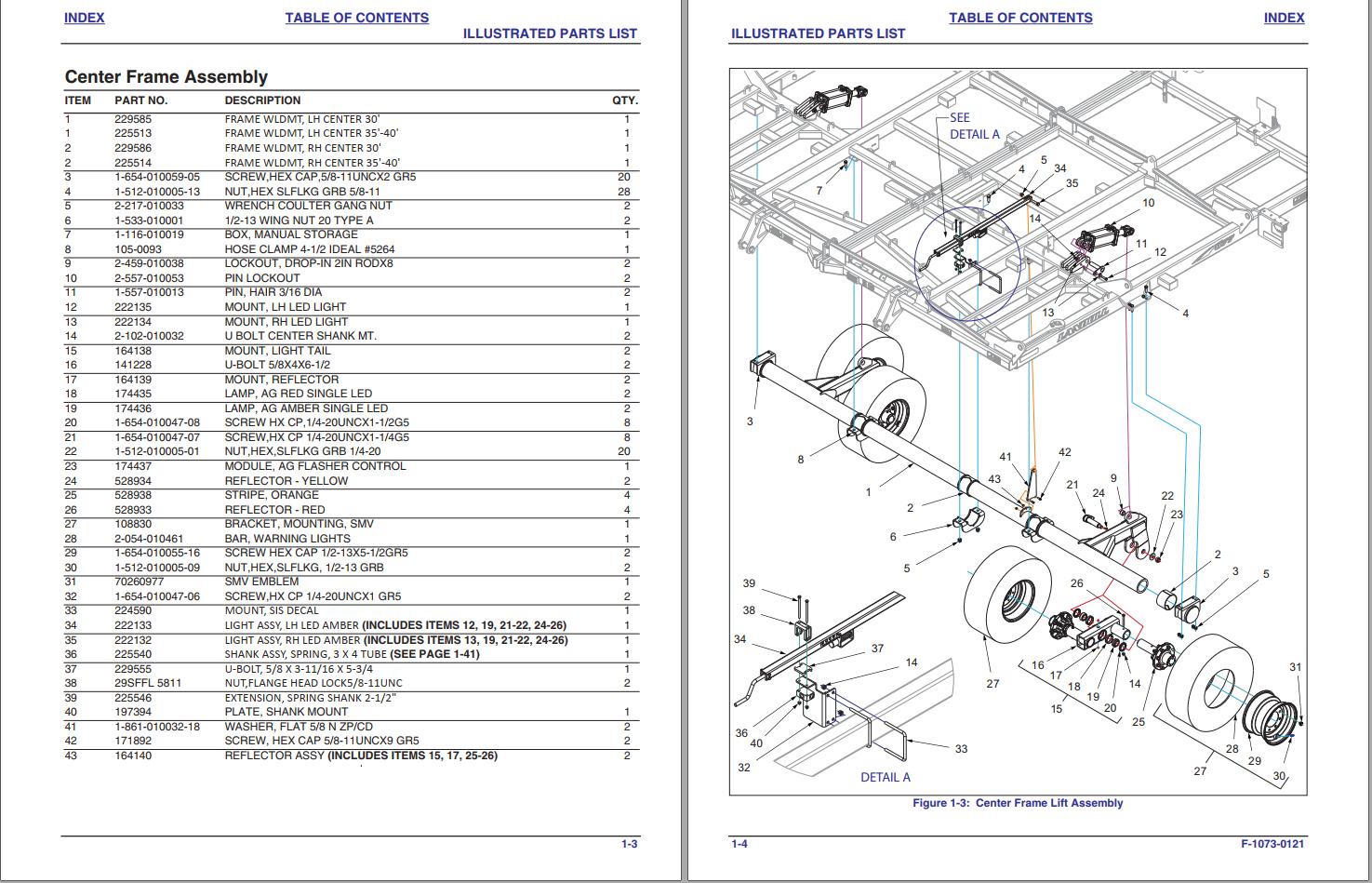
Landoll Tilloll 877 Parts Manual F10730121
Landoll Disc 7431 VT Plus Parts Manual F5620420
Landoll 425B 440 455 SemiTrailer Flatbed Parts Catalog Book manual
Landoll Parts Catalog Catalog Library
Landoll Pickup Pulverizer PPD PPO Series 10 Through 20 Operator’s
Landoll Trailer Parts & Service Manuals Eastern Wrecker Sales Inc
Landoll 600a Series SemiTrailer Flatbed Parts Catalog Book manual
Landoll 425B 440 455 SemiTrailer Flatbed Parts Catalog Book manual
Landoll 600a Series SemiTrailer Flatbed Parts Catalog Book manual
Landoll 600a Series SemiTrailer Flatbed Parts Catalog Book manual
Landoll Trailer Parts & Service Manuals Eastern Wrecker Sales Inc
Landoll Disc 6250 Parts Manual F10590820
Landoll Disc 7833 High Speed Landoll (HSL) Parts Manual F8950221
Landoll Trailer Parts & Service Manuals Eastern Wrecker Sales Inc
Landoll Parts Catalog Catalog Library
440B Landoll Trailers, Traveling Axle Landoll
Landoll Trailer Parts & Service Manuals Eastern Wrecker Sales Inc
Landoll Disc 6231 Parts Manual F8330820
Landoll 600a Series SemiTrailer Flatbed Parts Catalog Book manual
Related Post:


































