Half Hollow Hills Library Catalog
Half Hollow Hills Library Catalog - In fields such as biology, physics, and astronomy, patterns can reveal underlying structures and relationships within complex data sets. In science and engineering, where collaboration is global and calculations must be exact, the metric system (specifically the International System of Units, or SI) is the undisputed standard. A printable chart is a tangible anchor in a digital sea, a low-tech antidote to the cognitive fatigue that defines much of our daily lives. This exploration into the world of the printable template reveals a powerful intersection of design, technology, and the enduring human need to interact with our tasks in a physical, hands-on manner. The world of art and literature is also profoundly shaped by the influence of the creative ghost template. Virtual and augmented reality technologies are also opening new avenues for the exploration of patterns. If it powers on, power it back down, disconnect everything again, and proceed with full reassembly. The Bauhaus school in Germany, perhaps the single most influential design institution in history, sought to reunify art, craft, and industry. Templates for invitations, greeting cards, and photo books add a personal touch to special occasions and memories. 17The Psychology of Progress: Motivation, Dopamine, and Tangible RewardsThe simple satisfaction of checking a box, coloring in a square, or placing a sticker on a printable chart is a surprisingly powerful motivator. The convenience and low prices of a dominant online retailer, for example, have a direct and often devastating cost on local, independent businesses. No diagnostic procedure should ever be performed with safety interlocks bypassed or disabled. The true cost becomes apparent when you consider the high price of proprietary ink cartridges and the fact that it is often cheaper and easier to buy a whole new printer than to repair the old one when it inevitably breaks. It seems that even as we are given access to infinite choice, we still crave the guidance of a trusted human expert. A digital chart displayed on a screen effectively leverages the Picture Superiority Effect; we see the data organized visually and remember it better than a simple text file. In a world defined by its diversity, the conversion chart is a humble but powerful force for unity, ensuring that a kilogram of rice, a liter of fuel, or a meter of cloth can be understood, quantified, and trusted, everywhere and by everyone. Care must be taken when handling these components. Building Better Habits: The Personal Development ChartWhile a chart is excellent for organizing external tasks, its true potential is often realized when it is turned inward to focus on personal growth and habit formation. So, where does the catalog sample go from here? What might a sample of a future catalog look like? Perhaps it is not a visual artifact at all. While the digital template dominates our modern workflow, the concept of the template is deeply rooted in the physical world, where it has existed for centuries as a guide for manual creation. 48 An ethical chart is also transparent; it should include clear labels, a descriptive title, and proper attribution of data sources to ensure credibility and allow for verification. I journeyed through its history, its anatomy, and its evolution, and I have arrived at a place of deep respect and fascination. Templates are designed to provide a consistent layout, style, and functionality, enabling users to focus on content and customization rather than starting from scratch. I saw them as a kind of mathematical obligation, the visual broccoli you had to eat before you could have the dessert of creative expression. The most powerful ideas are not invented; they are discovered. It sits there on the page, or on the screen, nestled beside a glossy, idealized photograph of an object. This is the moment the online catalog begins to break free from the confines of the screen, its digital ghosts stepping out into our physical world, blurring the line between representation and reality. Anyone with design skills could open a digital shop. They are built from the fragments of the world we collect, from the constraints of the problems we are given, from the conversations we have with others, from the lessons of those who came before us, and from a deep empathy for the people we are trying to serve. 66 This will guide all of your subsequent design choices. This journey from the physical to the algorithmic forces us to consider the template in a more philosophical light. Furthermore, a website theme is not a template for a single page, but a system of interconnected templates for all the different types of pages a website might need. " I hadn't seen it at all, but once she pointed it out, it was all I could see. They don't just present a chart; they build a narrative around it. You will also see various warning and indicator lamps illuminate on this screen. A series of bar charts would have been clumsy and confusing. Design became a profession, a specialized role focused on creating a single blueprint that could be replicated thousands or millions of times. Patterns also offer a sense of predictability and familiarity. Parents can design a beautiful nursery on a modest budget. This was a profound lesson for me. The images were small, pixelated squares that took an eternity to load, line by agonizing line. This is not mere decoration; it is information architecture made visible. After safely securing the vehicle on jack stands and removing the front wheels, you will be looking at the brake caliper assembly mounted over the brake rotor. It is highly recommended to wear anti-static wrist straps connected to a proper grounding point to prevent electrostatic discharge (ESD), which can cause catastrophic failure of the sensitive microelectronic components within the device. Your vehicle may be equipped with a power-folding feature for the third-row seats, which allows you to fold and unfold them with the simple press of a button located in the cargo area. To start the engine, ensure the vehicle's continuously variable transmission (CVT) is in the Park (P) position and your foot is firmly on the brake pedal. They can convey cultural identity, express artistic innovation, and influence emotional responses. They are the cognitive equivalent of using a crowbar to pry open a stuck door. The template is not a cage; it is a well-designed stage, and it is our job as designers to learn how to perform upon it with intelligence, purpose, and a spark of genuine inspiration. 59 A Gantt chart provides a comprehensive visual overview of a project's entire lifecycle, clearly showing task dependencies, critical milestones, and overall progress, making it essential for managing scope, resources, and deadlines. This offers the feel of a paper planner with digital benefits. While digital planners offer undeniable benefits like accessibility from any device, automated reminders, and easy sharing capabilities, they also come with significant drawbacks. Once the problem is properly defined, the professional designer’s focus shifts radically outwards, away from themselves and their computer screen, and towards the user. Communication with stakeholders is a critical skill. The technical quality of the printable file itself is also paramount. This simple tool can be adapted to bring order to nearly any situation, progressing from managing the external world of family schedules and household tasks to navigating the internal world of personal habits and emotional well-being. It is a compressed summary of a global network of material, energy, labor, and intellect. What style of photography should be used? Should it be bright, optimistic, and feature smiling people? Or should it be moody, atmospheric, and focus on abstract details? Should illustrations be geometric and flat, or hand-drawn and organic? These guidelines ensure that a brand's visual storytelling remains consistent, preventing a jarring mix of styles that can confuse the audience. Both should be checked regularly when the vehicle is cool to ensure the fluid levels are between the 'FULL' and 'LOW' lines. It is important to follow these instructions carefully to avoid injury. Of course, this new power came with a dark side. It looked vibrant. " While we might think that more choice is always better, research shows that an overabundance of options can lead to decision paralysis, anxiety, and, even when a choice is made, a lower level of satisfaction because of the nagging fear that a better option might have been missed. It presents proportions as slices of a circle, providing an immediate, intuitive sense of relative contribution. Its creation was a process of subtraction and refinement, a dialogue between the maker and the stone, guided by an imagined future where a task would be made easier. By drawing a simple line for each item between two parallel axes, it provides a crystal-clear picture of which items have risen, which have fallen, and which have crossed over. But if you look to architecture, psychology, biology, or filmmaking, you can import concepts that feel radically new and fresh within a design context. The catalog you see is created for you, and you alone. They simply slide out of the caliper mounting bracket. Through trial and error, experimentation, and reflection, artists learn to trust their instincts, develop their own unique voice, and find meaning in their work. By externalizing health-related data onto a physical chart, individuals are empowered to take a proactive and structured approach to their well-being. It was an InDesign file, pre-populated with a rigid grid, placeholder boxes marked with a stark 'X' where images should go, and columns filled with the nonsensical Lorem Ipsum text that felt like a placeholder for creativity itself. 66 This will guide all of your subsequent design choices. This is why an outlier in a scatter plot or a different-colored bar in a bar chart seems to "pop out" at us. Exploring the Japanese concept of wabi-sabi—the appreciation of imperfection, transience, and the beauty of natural materials—offered a powerful antidote to the pixel-perfect, often sterile aesthetic of digital design. In conclusion, free drawing is a liberating and empowering practice that celebrates the inherent creativity of the human spirit. Lift the plate off vertically to avoid damaging the internal components. I can feed an AI a concept, and it will generate a dozen weird, unexpected visual interpretations in seconds. For a child using a chore chart, the brain is still developing crucial executive functions like long-term planning and intrinsic motivation. A thin, black band then shows the catastrophic retreat, its width dwindling to almost nothing as it crosses the same path in reverse.Half Hollow Hills... Half Hollow Hills Community Library
Home Half Hollow Hills Community Library
Home Half Hollow Hills Community Library
Newsletters Half Hollow Hills Community Library
New Library Website Reveals All Half Hollow Hills, NY Patch
HALF HOLLOW HILLS PUBLIC LIBRARY (2025) Everything You Need to Know
1000 Books Before Kindergarten Extravaganza Dix Hills Half Hollow
Board of Trustees Half Hollow Hills Community Library
Home Half Hollow Hills Community Library
Home Half Hollow Hills Community Library
HHHL Mobile by Half Hollow Hills Community Library
121223 Ride Along A Trip to Half Hollow Hills Library Part II
Dix Hills, NY Senior Resource Spotlight Half Hollow Hills Community
LSC Watch Half Hollow Hills Community Library Webinars and Online
Half Hollow Hills Community Library celebrates grand reopening
Newsletters Half Hollow Hills Community Library
Home Half Hollow Hills Community Library
Half Hollow Hills Community Library Dix Hills NY
Home Half Hollow Hills Community Library
Home Half Hollow Hills Community Library
Monster Mash Dix Hills Half Hollow Hills Community Library
Kiosk Screen Half Hollow Hills Community Library
Half Hollow Hills Community Library celebrates grand reopening
Half Hollow Hills Community Library celebrates grand reopening
Half Hollow Hills Library (hhhlibrary) • Instagram photos and videos
Half Hollow Hills Public Library Arnold Contract
Groovin' Blue Performing at Half Hollow Hills Library YouTube
Home Half Hollow Hills Community Library
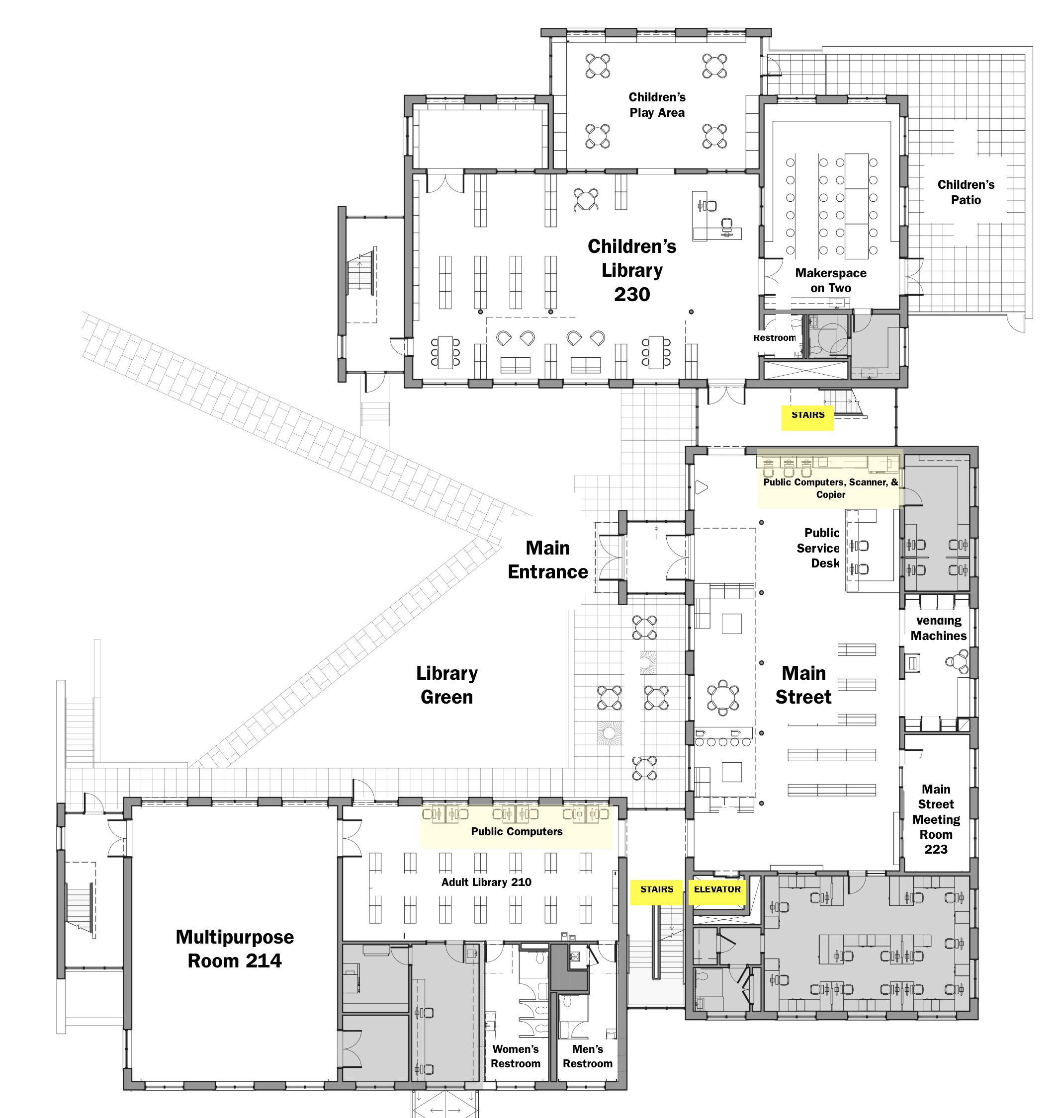
Building Project Half Hollow Hills Community Library
Library and Media Center Half Hollow Hills School District
to view and download the above calendar in PDF Half Hollow Hills
Half Hollow Hills Library (hhhlibrary) • Instagram photos and videos
Half Hollow Hills Community Library celebrates grand reopening
Kiosk Screen Half Hollow Hills Community Library
Building Project Half Hollow Hills Community Library
Related Post:
























_edited.jpg)



