Glynn Johnson Catalog
Glynn Johnson Catalog - A truly honest cost catalog would need to look beyond the purchase and consider the total cost of ownership. The physical act of writing by hand on a paper chart stimulates the brain more actively than typing, a process that has been shown to improve memory encoding, information retention, and conceptual understanding. With the screen and battery already disconnected, you will need to systematically disconnect all other components from the logic board. Design became a profession, a specialized role focused on creating a single blueprint that could be replicated thousands or millions of times. Having a great product is not enough if no one sees it. Things like naming your files logically, organizing your layers in a design file so a developer can easily use them, and writing a clear and concise email are not trivial administrative tasks. Regular maintenance is essential to keep your Aeris Endeavour operating safely, efficiently, and reliably. It is an emotional and psychological landscape. These lamps are color-coded to indicate their severity: red lamps indicate a serious issue that requires your immediate attention, yellow lamps indicate a system malfunction or a service requirement, and green or blue lamps typically indicate that a system is active. The digital age has transformed the way people journal, offering new platforms and tools for self-expression. The hand-drawn, personal visualizations from the "Dear Data" project are beautiful because they are imperfect, because they reveal the hand of the creator, and because they communicate a sense of vulnerability and personal experience that a clean, computer-generated chart might lack. We have seen how a single, well-designed chart can bring strategic clarity to a complex organization, provide the motivational framework for achieving personal fitness goals, structure the path to academic success, and foster harmony in a busy household. Your Voyager is also equipped with selectable drive modes, which you can change using the drive mode controller. I see it now for what it is: not an accusation, but an invitation. If it detects a loss of traction or a skid, it will automatically apply the brakes to individual wheels and may reduce engine power to help stabilize the vehicle. The brand guideline constraint forces you to find creative ways to express a new idea within an established visual language. It goes beyond simply placing text and images on a page. 85 A limited and consistent color palette can be used to group related information or to highlight the most important data points, while also being mindful of accessibility for individuals with color blindness by ensuring sufficient contrast. Regularly reviewing these goals and reflecting on the steps taken toward their accomplishment can foster a sense of achievement and boost self-confidence. In the era of print media, a comparison chart in a magazine was a fixed entity. A meal planning chart is a simple yet profoundly effective tool for fostering healthier eating habits, saving money on groceries, and reducing food waste. The scientific method, with its cycle of hypothesis, experiment, and conclusion, is a template for discovery. 33 For cardiovascular exercises, the chart would track metrics like distance, duration, and intensity level. I spent weeks sketching, refining, and digitizing, agonizing over every curve and point. They can build a custom curriculum from various online sources. For the longest time, this was the entirety of my own understanding. We had to define the brand's approach to imagery. It might be a weekly planner tacked to a refrigerator, a fitness log tucked into a gym bag, or a project timeline spread across a conference room table. This is why taking notes by hand on a chart is so much more effective for learning and commitment than typing them verbatim into a digital device. To do this, you can typically select the chart and use a "Move Chart" function to place it on a new, separate sheet within your workbook. There was a "Headline" style, a "Subheading" style, a "Body Copy" style, a "Product Spec" style, and a "Price" style. It is a way for individuals to externalize their thoughts, emotions, and observations onto a blank canvas, paper, or digital screen. Online templates have had a transformative impact across multiple sectors, enhancing productivity and creativity. Creativity thrives under constraints. They are visual thoughts. " This bridges the gap between objective data and your subjective experience, helping you identify patterns related to sleep, nutrition, or stress that affect your performance. A jack is a lifting device, not a support device. We see it in the monumental effort of the librarians at the ancient Library of Alexandria, who, under the guidance of Callimachus, created the *Pinakes*, a 120-volume catalog that listed and categorized the hundreds of thousands of scrolls in their collection. In the digital realm, the nature of cost has become even more abstract and complex. I had to research their histories, their personalities, and their technical performance. This spatial organization converts a chaotic cloud of data into an orderly landscape, enabling pattern recognition and direct evaluation with an ease and accuracy that our unaided memory simply cannot achieve. 15 This dual engagement deeply impresses the information into your memory. The faint, sweet smell of the aging paper and ink is a form of time travel. It means using color strategically, not decoratively. Once created, this personal value chart becomes a powerful decision-making framework. The process begins in the digital realm, with a perfectly designed, infinitely replicable file. The X-axis travel is 300 millimeters, and the Z-axis travel is 1,200 millimeters, both driven by high-precision, ground ball screws coupled directly to AC servo motors. They are the product of designers who have the patience and foresight to think not just about the immediate project in front of them, but about the long-term health and coherence of the brand or product. This is where the ego has to take a backseat. The very shape of the placeholders was a gentle guide, a hint from the original template designer about the intended nature of the content. It is printed in a bold, clear typeface, a statement of fact in a sea of persuasive adjectives. He introduced me to concepts that have become my guiding principles. The instrument cluster and controls of your Ascentia are engineered for clarity and ease of use, placing vital information and frequently used functions within your immediate line of sight and reach. In graphic design, this language is most explicit. 50 Chart junk includes elements like 3D effects, heavy gridlines, unnecessary backgrounds, and ornate frames that clutter the visual field and distract the viewer from the core message of the data. Printable wall art has revolutionized interior decorating. Patterns are not merely visual phenomena; they also have profound cultural and psychological impacts. 49 This type of chart visually tracks key milestones—such as pounds lost, workouts completed, or miles run—and links them to pre-determined rewards, providing a powerful incentive to stay committed to the journey. I used to believe that an idea had to be fully formed in my head before I could start making anything. A student might be tasked with designing a single poster. It is a concept that has evolved in lockstep with our greatest technological innovations, from the mechanical press that spread literacy across the globe to the digital files that unified our global communication, and now to the 3D printers that are beginning to reshape the landscape of manufacturing and creation. Complementing the principle of minimalism is the audience-centric design philosophy championed by expert Stephen Few, which emphasizes creating a chart that is optimized for the cognitive processes of the viewer. The budget constraint forces you to be innovative with materials. 24The true, unique power of a printable chart is not found in any single one of these psychological principles, but in their synergistic combination. This represents the ultimate evolution of the printable concept: the direct materialization of a digital design. 63Designing an Effective Chart: From Clutter to ClarityThe design of a printable chart is not merely about aesthetics; it is about applied psychology. When I looked back at the catalog template through this new lens, I no longer saw a cage. The project forced me to move beyond the surface-level aesthetics and engage with the strategic thinking that underpins professional design. The repetitive motions involved in crocheting can induce a meditative state, reducing stress and anxiety. Through art therapy, individuals can explore and confront their emotions, traumas, and fears in a safe and supportive environment. At its core, knitting is about more than just making things; it is about creating connections, both to the past and to the present. It reintroduced color, ornament, and playfulness, often in a self-aware and questioning manner. Crafters can print their own stickers on special sticker paper. A chart idea wasn't just about the chart type; it was about the entire communicative package—the title, the annotations, the colors, the surrounding text—all working in harmony to tell a clear and compelling story. Whether we are sketching in the margins of a notebook or painting on a grand canvas, drawing allows us to tap into our innermost selves and connect with the world around us in meaningful and profound ways. Measured in dots per inch (DPI), resolution dictates the detail an image will have when printed. The reason that charts, whether static or interactive, work at all lies deep within the wiring of our brains. A simple left-click on the link will initiate the download in most web browsers.VINTAGE GlynnJohnson COMMERCIAL DOOR BUMPER STAINLESS ORIG BOX W
Glynn Johnson 104S Template
Catalog Products 706HSP28 SECLOCK
GlynnJohnson 70 Series Door Holder
Glynn Johnson Premium Door Controls And Hardware
450 Series Holders and Stops GlynnJohnson 450
GlynnJohnson 414S10B Medium Duty Size 4 Concealed Overhead Stop Oil
GlynnJohnson HL62 626 A PushPull Lever Roller Auctions
GlynnJohnson 100 Series Overview Of Installation Instructions YouTube
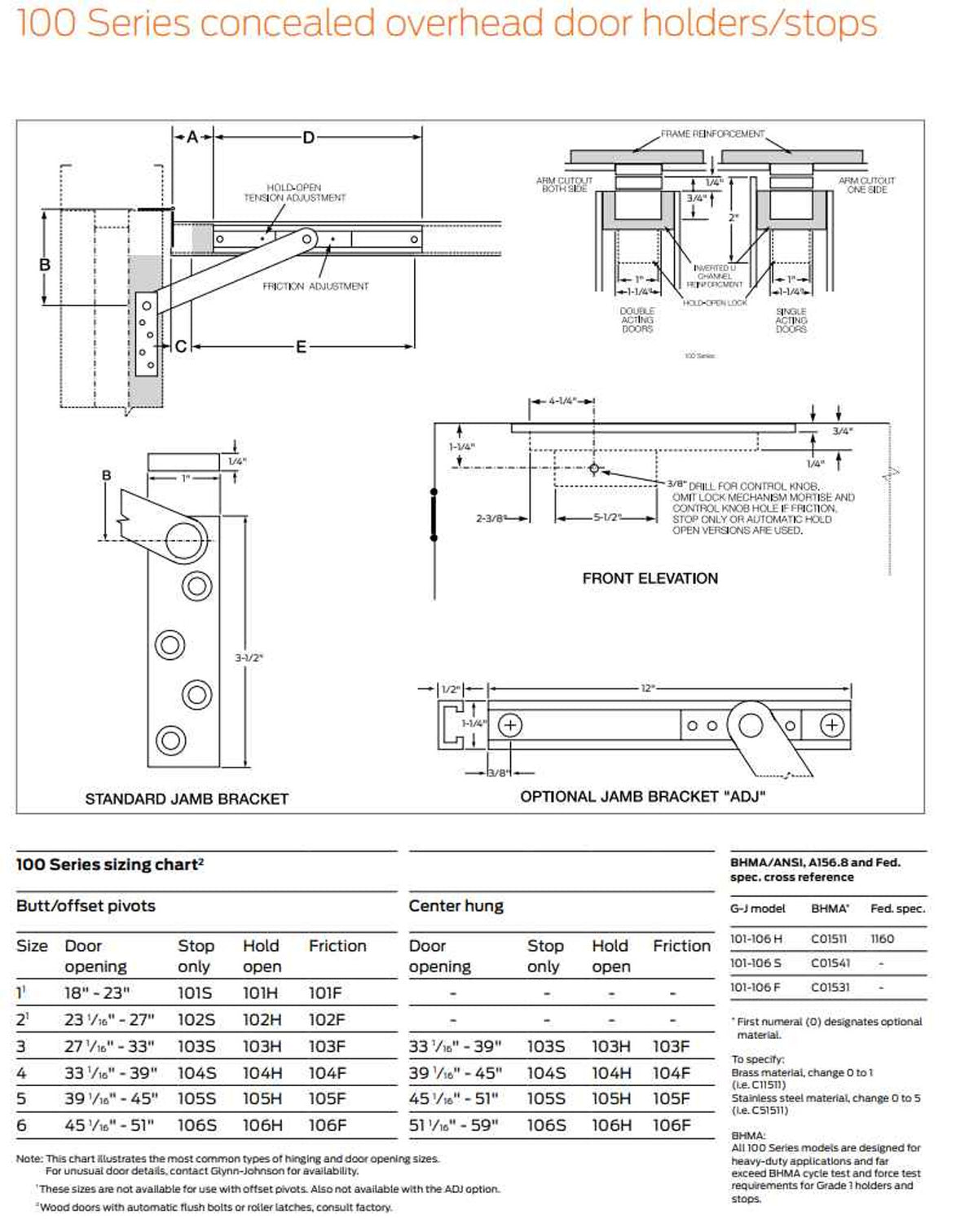
Glynn Johnson 100 Series Heavy Duty Concealed Overhead Door Holders
GlynnJohnson 902S32D Size 2 Heavy Duty Surface Overhead Stop Satin
GlynnJohnson
GlynnJohnson 412S10B Medium Duty Size 2 Concealed Overhead Stop Oil
Glynn Johnson Price Book PDF Door
GLYNNJOHNSON, Passage Paddle Locksets, ADA Compliant, Door Lockset
GLYNN JOHNSON 100 INSTALLATION INSTRUCTIONS Pdf Download ManualsLib
Glynn Johnson 904S643E/716 Overhead Holders and Stops Aged Bronze Buy Now
Glynn Johnson 90 Series Shim Kits Fairway Supply, Inc.
104SUS4 SE Glynn Johnson Overhead Holders and Stops SECLOCK
GlynnJohnson OHPART10326 90 Friction Conversion Kit The Home Decor
Glynn Johnson 104s Template
Glynn Johnson
450 Series Holders and Stops GlynnJohnson 450
Glynn Johnson HL62AS US26D AM 4AYC7 Heavy Duty Push/pull Lever
Glynn Johnson 104S Template
Glynn Johnson 2020 Price Book (Effective 4/4/20) GJ PB7
GlynnJohnson 702H Heavy Duty Surface Overhead Hold Open, Size 2
Glynn Johnson Product Catalog Glynnjohnsoncatalog
Glynn Johnson 90 Series Surface Heavy Duty Overhead Door Holders/Stops
GlynnJohnson 90 Series Heavy Duty Surface Overhead Door Holders/Sto
Glynn Johnson Door Controller PDF
GlynnJohnson 100 Series Heavy Duty Concealed Overhead Door Holders
Glynn Johnson Corp 104HUS10B Overhead Door Holder IMS Supply
Glynn Johnson Product Catalog Glynnjohnsoncatalog
Related Post:



















-v1d.png)







