Applicable Incentive Catalog At Focusonenergy Com Applications
Applicable Incentive Catalog At Focusonenergy Com Applications - It’s a classic debate, one that probably every first-year student gets hit with, but it’s the cornerstone of understanding what it means to be a professional. If your vehicle's 12-volt battery is discharged, you will not be able to start the engine. Techniques and Tools Education and Academia Moreover, patterns are integral to the field of cryptography, where they are used to encode and decode information securely. After the logo, we moved onto the color palette, and a whole new world of professional complexity opened up. The chart is no longer just a static image of a conclusion; it has become a dynamic workshop for building one. Furthermore, this hyper-personalization has led to a loss of shared cultural experience. The tools of the trade are equally varied. The weight and material of a high-end watch communicate precision, durability, and value. The first dataset shows a simple, linear relationship. This number, the price, is the anchor of the entire experience. By transforming a digital blueprint into a tangible workspace, the printable template provides the best of both worlds: professional, accessible design and a personal, tactile user experience. Efforts to document and preserve these traditions are crucial. Of course, there was the primary, full-color version. From this viewpoint, a chart can be beautiful not just for its efficiency, but for its expressiveness, its context, and its humanity. I saw them as a kind of mathematical obligation, the visual broccoli you had to eat before you could have the dessert of creative expression. A truly considerate designer might even offer an "ink-saver" version of their design, minimizing heavy blocks of color to reduce the user's printing costs. This "good enough" revolution has dramatically raised the baseline of visual literacy and quality in our everyday lives. 26 In this capacity, the printable chart acts as a powerful communication device, creating a single source of truth that keeps the entire family organized and connected. The designer of the template must act as an expert, anticipating the user’s needs and embedding a logical workflow directly into the template’s structure. Whether it's through doodling, sketching from imagination, or engaging in creative exercises and prompts, nurturing your creativity is essential for artistic growth and innovation. This catalog sample is a masterclass in functional, trust-building design. It is a private, bespoke experience, a universe of one. This tendency, known as pattern recognition, is fundamental to our perception and understanding of our environment. Fishermen's sweaters, known as ganseys or guernseys, were essential garments for seafarers, providing warmth and protection from the harsh maritime climate. Just like learning a spoken language, you can’t just memorize a few phrases; you have to understand how the sentences are constructed. The copy is intellectual, spare, and confident. Or perhaps the future sample is an empty space. This involves more than just choosing the right chart type; it requires a deliberate set of choices to guide the viewer’s attention and interpretation. We see it in the monumental effort of the librarians at the ancient Library of Alexandria, who, under the guidance of Callimachus, created the *Pinakes*, a 120-volume catalog that listed and categorized the hundreds of thousands of scrolls in their collection. These images, which can be downloaded, edited, and printed, play an essential role in various sectors, from education and business to arts and crafts. Do not attempt to remove the screen assembly completely at this stage. For comparing change over time, a simple line chart is often the right tool, but for a specific kind of change story, there are more powerful ideas. If it detects a loss of control or a skid, it can reduce engine power and apply braking to individual wheels to help you stay on your intended path. The typography was not just a block of Lorem Ipsum set in a default font. The Industrial Revolution was producing vast new quantities of data about populations, public health, trade, and weather, and a new generation of thinkers was inventing visual forms to make sense of it all. We recommend using filtered or distilled water to prevent mineral buildup over time. 28 In this capacity, the printable chart acts as a powerful, low-tech communication device that fosters shared responsibility and keeps the entire household synchronized. It is, perhaps, the most optimistic of all the catalog forms. When you press the accelerator, the brake hold function automatically disengages. You can control the audio system, make hands-free calls, and access various vehicle settings through this intuitive display. Trying to decide between five different smartphones based on a dozen different specifications like price, battery life, camera quality, screen size, and storage capacity becomes a dizzying mental juggling act. I quickly learned that this is a fantasy, and a counter-productive one at that. A weekly meal plan chart, for example, can simplify grocery shopping and answer the daily question of "what's for dinner?". Then, press the "POWER" button located on the dashboard. The user of this catalog is not a casual browser looking for inspiration. The introduction of purl stitches in the 16th century expanded the creative potential of knitting, allowing for more complex patterns and textures. The catalog, once a physical object that brought a vision of the wider world into the home, has now folded the world into a personalized reflection of the self. 35 Here, you can jot down subjective feelings, such as "felt strong today" or "was tired and struggled with the last set. Each type of symmetry contributes to the overall harmony and coherence of the pattern. The low barrier to entry fueled an explosion of creativity. It invites participation. Furthermore, the modern catalog is an aggressive competitor in the attention economy. The appeal lies in the ability to customize your own planning system. 1 It is within this complex landscape that a surprisingly simple tool has not only endured but has proven to be more relevant than ever: the printable chart. Fractals are another fascinating aspect of mathematical patterns. It requires a leap of faith. Its order is fixed by an editor, its contents are frozen in time by the printing press. If a tab breaks, you may need to gently pry the battery up using a plastic card, being extremely careful not to bend or puncture the battery cell. The true artistry of this sample, however, lies in its copy. The future of printables is evolving with technology. Proceed to unbolt the main spindle cartridge from the headstock casting. Instead, it is shown in fully realized, fully accessorized room settings—the "environmental shot. A true cost catalog for a "free" social media app would have to list the data points it collects as its price: your location, your contact list, your browsing history, your political affiliations, your inferred emotional state. This sample is a radically different kind of artifact. The website "theme," a concept familiar to anyone who has used a platform like WordPress, Shopify, or Squarespace, is the direct digital descendant of the print catalog template. In all these cases, the ghost template is a functional guide. Moreover, drawing serves as a form of meditation, offering artists a reprieve from the chaos of everyday life. Printable maps and diagrams are useful for geography and science. The challenge is no longer just to create a perfect, static object, but to steward a living system that evolves over time. You begin to see the same layouts, the same font pairings, the same photo styles cropping up everywhere. This act of transmutation is not merely a technical process; it is a cultural and psychological one. Suddenly, the nature of the "original" was completely upended. They were acts of incredible foresight, designed to last for decades and to bring a sense of calm and clarity to a visually noisy world. From a simple blank grid on a piece of paper to a sophisticated reward system for motivating children, the variety of the printable chart is vast, hinting at its incredible versatility. For a manager hiring a new employee, they might be education level, years of experience, specific skill proficiencies, and interview scores. Charting Your Inner World: The Feelings and Mental Wellness ChartPerhaps the most nuanced and powerful application of the printable chart is in the realm of emotional intelligence and mental wellness. He didn't ask what my concepts were. Beyond invoices, one can find a printable business card template with precise dimensions and crop marks, a printable letterhead template to ensure consistent branding, and comprehensive printable business plan templates that guide aspiring entrepreneurs through every section, from executive summary to financial projections.Rice Lake Utilities Every dollar counts! With every monthly bill your
Incentive Programs For Employees Examples at John Covert blog
Focus on Energy
multifamily energy savings program
Focus on Energy’s Strategic Energy Management… Focus on Energy
Fillable Online 2020 PROCESS SYSTEMS INCENTIVE CATALOG SUPPLEMENTAL
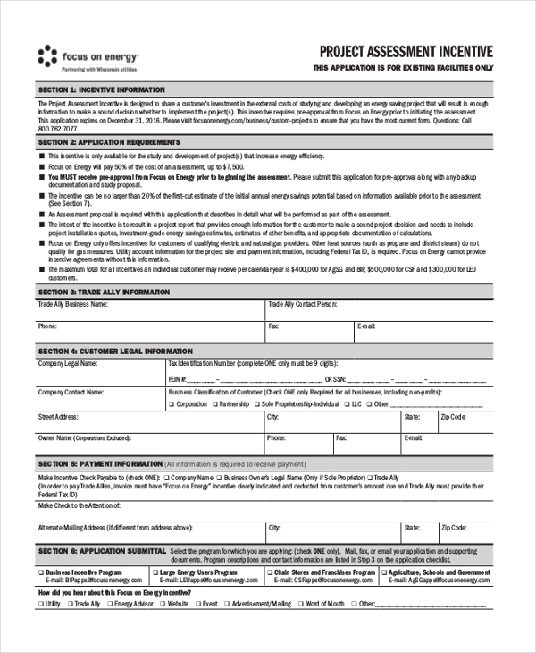
FREE 12+ Sample Project Assessment Froms in PDF MS Word Excel
Wisconsin Launches First Home Energy Rebate Program Kiplinger
Focus on Energy (focusonenergy) / Twitter
Ethos Green Power Cooperative We are incredibly proud to have
Renewable Energy Basics West Central CERT Our
Focus on Energy
Download Legacy Incentives Catalog WorkTango
Focus on Energy (focusonenergy) / Twitter
FOCUS ON ENERGY PROGRAM I
New Incentives Featured In 2020 Catalog Through Focus On Energy Mid
Marshfield Utilities on LinkedIn marshfieldutilities focusfriday
Fillable Online 2022 incentive catalog consumers energy (4.06 MB
Hastings Air Energy Control, Inc. on LinkedIn focusonenergy
Learn about Focus on Energy incentives ICS Group posted on the topic
Building a Secure Application Catalog StepbyStep MDM Approach
Focus on Energy (focusonenergy) / Twitter
EQUIPMENT QUALIFICATION FORM Focus on Energy
Kaukauna Utilities Kaukauna WI
Focus on Energy (focusonenergy) / Twitter
Focus on Energy (focusonenergy) / Twitter
Focus on Energy Focus on Energy added a new photo — in...
FocusOnEnergy Sign Up Directions YouTube
2022 Incentive Catalog by HHPLIFT Issuu
Fillable Online . null2020.Multifamily.Program Catalog.Catalog2020.The
marshfieldutilities focusonenergy energyefficiency focusfriday
Steam Trap Systems (Steam_Trap_Sys) Twitter
HVAC Incentives
Fillable Online RFP Focus on Energy Fax Email Print pdfFiller
Related Post:




















