Adalet Enclosures Catalog
Adalet Enclosures Catalog - A printable document is self-contained and stable. A comprehensive student planner chart can integrate not only study times but also assignment due dates, exam schedules, and extracurricular activities, acting as a central command center for a student's entire academic life. This journey is the core of the printable’s power. These stitches can be combined in countless ways to create different textures, patterns, and shapes. The fields of data sonification, which translates data into sound, and data physicalization, which represents data as tangible objects, are exploring ways to engage our other senses in the process of understanding information. To replace the battery, which is a common repair for devices with diminished battery life, you must first remove the old one. But I now understand that they are the outcome of a well-executed process, not the starting point. The price we pay is not monetary; it is personal. The typographic rules I had created instantly gave the layouts structure, rhythm, and a consistent personality. Professional design is an act of service. These kits include vintage-style images, tags, and note papers. To engage with it, to steal from it, and to build upon it, is to participate in a conversation that spans generations. The pairing process is swift and should not take more than a few minutes. Digital environments are engineered for multitasking and continuous partial attention, which imposes a heavy extraneous cognitive load. The key is to not censor yourself. The manual was not a prison for creativity. 39 Even complex decision-making can be simplified with a printable chart. The perfect, all-knowing cost catalog is a utopian ideal, a thought experiment. The experience was tactile; the smell of the ink, the feel of the coated paper, the deliberate act of folding a corner or circling an item with a pen. They are beautiful not just for their clarity, but for their warmth, their imperfection, and the palpable sense of human experience they contain. This act of transmutation is not merely a technical process; it is a cultural and psychological one. The printable chart is not a monolithic, one-size-fits-all solution but rather a flexible framework for externalizing and structuring thought, which morphs to meet the primary psychological challenge of its user. There are only the objects themselves, presented with a kind of scientific precision. Your Aeris Endeavour is designed with features to help you manage emergencies safely. For example, the patterns formed by cellular structures in microscopy images can provide insights into biological processes and diseases. 69 By following these simple rules, you can design a chart that is not only beautiful but also a powerful tool for clear communication. Building Better Habits: The Personal Development ChartWhile a chart is excellent for organizing external tasks, its true potential is often realized when it is turned inward to focus on personal growth and habit formation. Printable maps, charts, and diagrams help students better understand complex concepts. We started with the logo, which I had always assumed was the pinnacle of a branding project. From enhancing business operations to simplifying personal projects, online templates have become indispensable tools. This is the scaffolding of the profession. While traditional pen-and-paper journaling remains popular, digital journaling offers several advantages. They were the holy trinity of Microsoft Excel, the dreary, unavoidable illustrations in my high school science textbooks, and the butt of jokes in business presentations. Users can simply select a template, customize it with their own data, and use drag-and-drop functionality to adjust colors, fonts, and other design elements to fit their specific needs. Light Sources: Identify the direction and type of light in your scene. A chart is a form of visual argumentation, and as such, it carries a responsibility to represent data with accuracy and honesty. There’s a wonderful book by Austin Kleon called "Steal Like an Artist," which argues that no idea is truly original. The moment I feel stuck, I put the keyboard away and grab a pen and paper. In an age of seemingly endless digital solutions, the printable chart has carved out an indispensable role. This versatility is impossible with traditional, physical art prints. The principles they established for print layout in the 1950s are the direct ancestors of the responsive grid systems we use to design websites today. So, when I think about the design manual now, my perspective is completely inverted. The price we pay is not monetary; it is personal. By plotting the locations of cholera deaths on a map, he was able to see a clear cluster around a single water pump on Broad Street, proving that the disease was being spread through contaminated water, not through the air as was commonly believed. 55 Furthermore, an effective chart design strategically uses pre-attentive attributes—visual properties like color, size, and position that our brains process automatically—to create a clear visual hierarchy. And, crucially, there is the cost of the human labor involved at every single stage. An educational chart, such as a multiplication table, an alphabet chart, or a diagram illustrating a scientific life cycle, leverages the fundamental principles of visual learning to make complex information more accessible and memorable for students. Doing so frees up the brain's limited cognitive resources for germane load, which is the productive mental effort used for actual learning, schema construction, and gaining insight from the data. This type of sample represents the catalog as an act of cultural curation. Similarly, one might use a digital calendar for shared appointments but a paper habit tracker chart to build a new personal routine. A simple video could demonstrate a product's features in a way that static photos never could. It is a mirror. How do you design a catalog for a voice-based interface? You can't show a grid of twenty products. These motivations exist on a spectrum, ranging from pure altruism to calculated business strategy. It is a powerful cognitive tool, deeply rooted in the science of how we learn, remember, and motivate ourselves. Each is secured by a press-fit connector, similar to the battery. First and foremost is choosing the right type of chart for the data and the story one wishes to tell. The introduction of the "master page" was a revolutionary feature. It is the beauty of pure function, of absolute clarity, of a system so well-organized that it allows an expert user to locate one specific item out of a million possibilities with astonishing speed and confidence. This owner's manual has been carefully prepared to help you understand the operation and maintenance of your new vehicle so that you may enjoy many years of driving pleasure. By signing up for the download, the user is added to the creator's mailing list, entering a sales funnel where they will receive marketing emails, information about paid products, online courses, or coaching services. A heartfelt welcome to the worldwide family of Toyota owners. Instead of struggling with layout, formatting, and ensuring all necessary legal and financial fields are included, they can download a printable invoice template. Beyond the speed of initial comprehension, the use of a printable chart significantly enhances memory retention through a cognitive phenomenon known as the "picture superiority effect. The resulting visualizations are not clean, minimalist, computer-generated graphics. This is especially popular within the planner community. However, digital journaling also presents certain challenges, such as the potential for distractions and concerns about privacy. It is not a public document; it is a private one, a page that was algorithmically generated just for me. Instead, it embarks on a more profound and often more challenging mission: to map the intangible. This practice is often slow and yields no immediate results, but it’s like depositing money in a bank. It was a tool, I thought, for people who weren't "real" designers, a crutch for the uninspired, a way to produce something that looked vaguely professional without possessing any actual skill or vision. When users see the same patterns and components used consistently across an application, they learn the system faster and feel more confident navigating it. The model number is a specific alphanumeric code; please do not confuse it with the serial number, which is unique to your individual unit. 102 In this hybrid model, the digital system can be thought of as the comprehensive "bank" where all information is stored, while the printable chart acts as the curated "wallet" containing only what is essential for the focus of the current day or week. If you then activate your turn signal, the light will flash and a warning chime will sound. Disassembly of major components should only be undertaken after a thorough diagnosis has pinpointed the faulty sub-system. Think before you act, work slowly and deliberately, and if you ever feel unsure or unsafe, stop what you are doing. Printable photo booth props add a fun element to any gathering. It was its greatest enabler. Design, in contrast, is fundamentally teleological; it is aimed at an end.ExplosionProof Enclosures XCESX Series AdaletEnclosures
Adalet Electrical Enclosures (Explosion Proof & Flame Proof
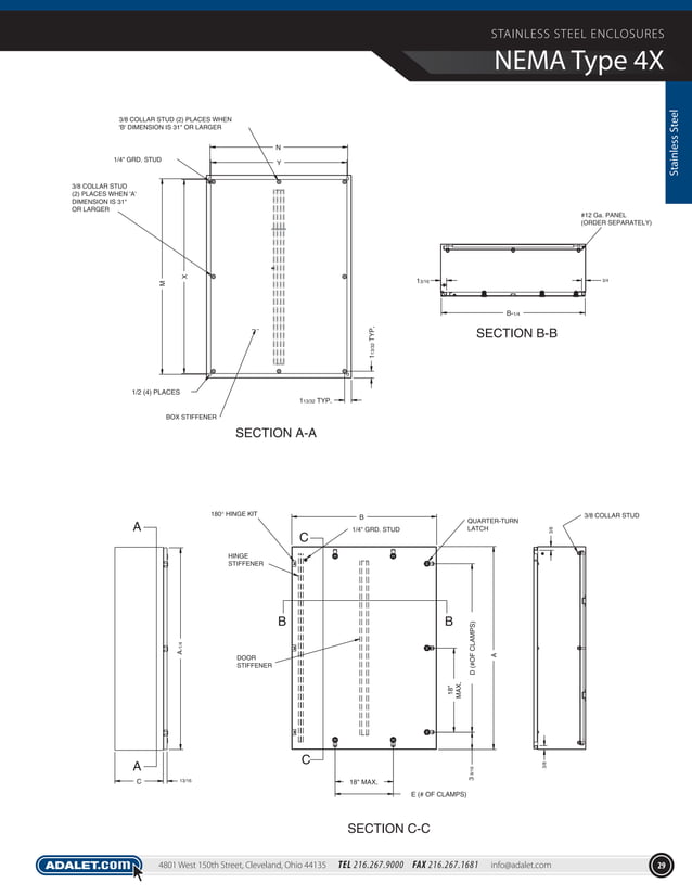
Stainless Steel Enclosures NEMA TYPE 4X JIC JN4XHSS Series
ExplosionProof Enclosures XCESX Series AdaletEnclosures
Fiberglass Large Control Enclosures AdaletEnclosures
Adalet Electrical Enclosures (Explosion Proof & Flame Proof
ExplosionProof Enclosures XGC Explosionproof Circular Windows
NEMA TYPE 4X Single Door Disconnect Enclosures AdaletEnclosures
Adalet Increased Safety Terminal Enclosures Datasheet
ExplosionProof Enclosures XCE Series AdaletEnclosures
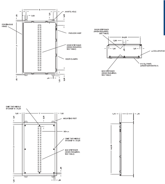
Stainless Steel Enclosures NEMA TYPE 4X N4X Series Single Door C
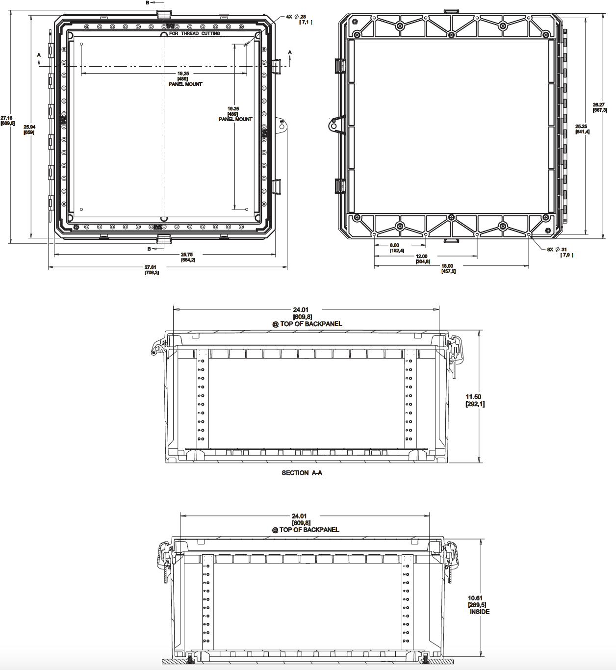
Polycarbonate Platinum Series Enclosures AdaletEnclosures
Industrial ENclosures Adalet's Stainless Steel Enclosures Carry IP66
ExplosionProof Enclosures XCE Series AdaletEnclosures
ExplosionProof Enclosures XCESX Series AdaletEnclosures
Stainless Steel Enclosures NEMA TYPE 4X AVSS / Victory Series Qu
Polycarbonate Enclosures AdaletEnclosures
Adalet Electrical Enclosures (Explosion Proof & Flame Proof
Polycarbonate Platinum Series Enclosures AdaletEnclosures
ExplosionProof Enclosures XCEX Series AdaletEnclosures
DustIgnition Proof Enclosures Stainless Steel AdaletEnclosures
Adalet Power Modules Inc.
Products AdaletEnclosures
ExplosionProof Enclosures XCE Series AdaletEnclosures
Fiberglass Premier Series Enclosures AdaletEnclosures
Fiberglass Extra Deep (XD) Series Enclosures AdaletEnclosures
ExplosionProof Enclosures PRISTAR Control Station AdaletEnclosures
Adalet Electrical Enclosures (Explosion Proof & Flame Proof
Stainless Steel Enclosures NEMA TYPE 4X N4X Series Single Door C
ExplosionProof Enclosures XIFC Internally Flanged Control Enclosures
ExplosionProof Enclosures XCE Series AdaletEnclosures
ADALET
Fiberglass Large Control Enclosures AdaletEnclosures
Fiberglass Extra Deep (XD) Series Enclosures AdaletEnclosures
Stainless Steel Enclosures NEMA TYPE 4X N4X Series Single Door C
Related Post:


































